BYT TUSAROVA
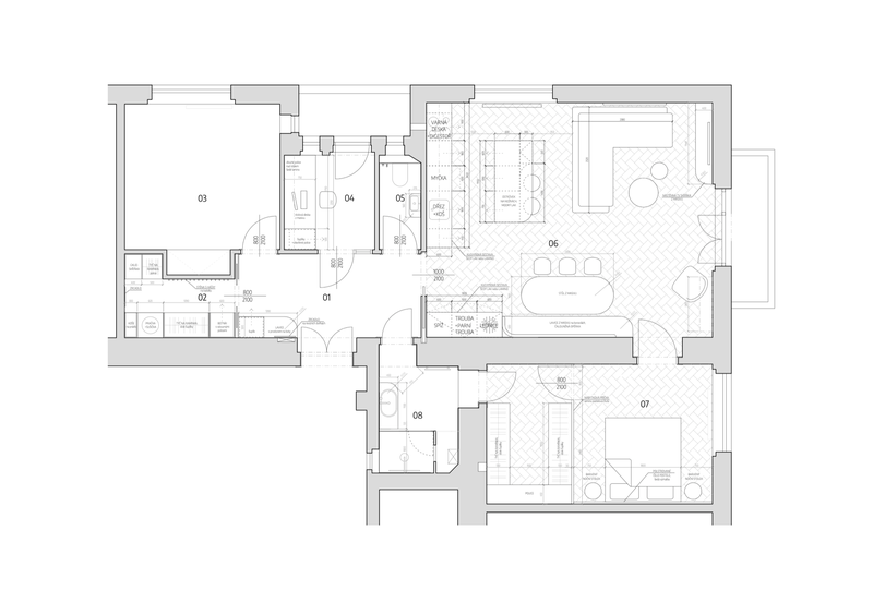
studie interiéru bytu a stručná výkresová dokumentace ke stavební části projektu
nahlédněte do finální studie rekonstrukce bytu
NOJA atelier - MgA. Ola Rejsa a Ing.arch. Lucia Horkavá
info@nojaatelier.cz
+420 605 009 068
Praha - Vinohrady a Litomyšl